Inhalt anspringen
Gutenberg-Denkmal mit dem Dom im Hintergrund
Johannes Gutenberg - Erfinder und Medienrevolutionär

Rückblick: Architektenwettbewerb und Bürgerentscheid zum Bibelturm

Bürgerentscheid "Bibelturm" (15. April 2018)

Die Mehrheit hat am 15. April entschieden, dass das Gutenberg-Museum nicht durch den Bau des „Bibelturms“ am Liebfrauenplatz erweitert werden soll.

Mit „Ja“ gestimmt haben 14.555 Bürgerinnen und Bürger. Mit „Nein“ gestimmt haben 49.663 Bürgerinnen und Bürger.

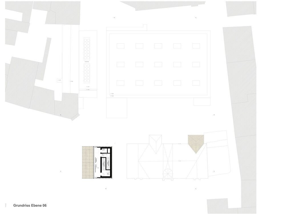
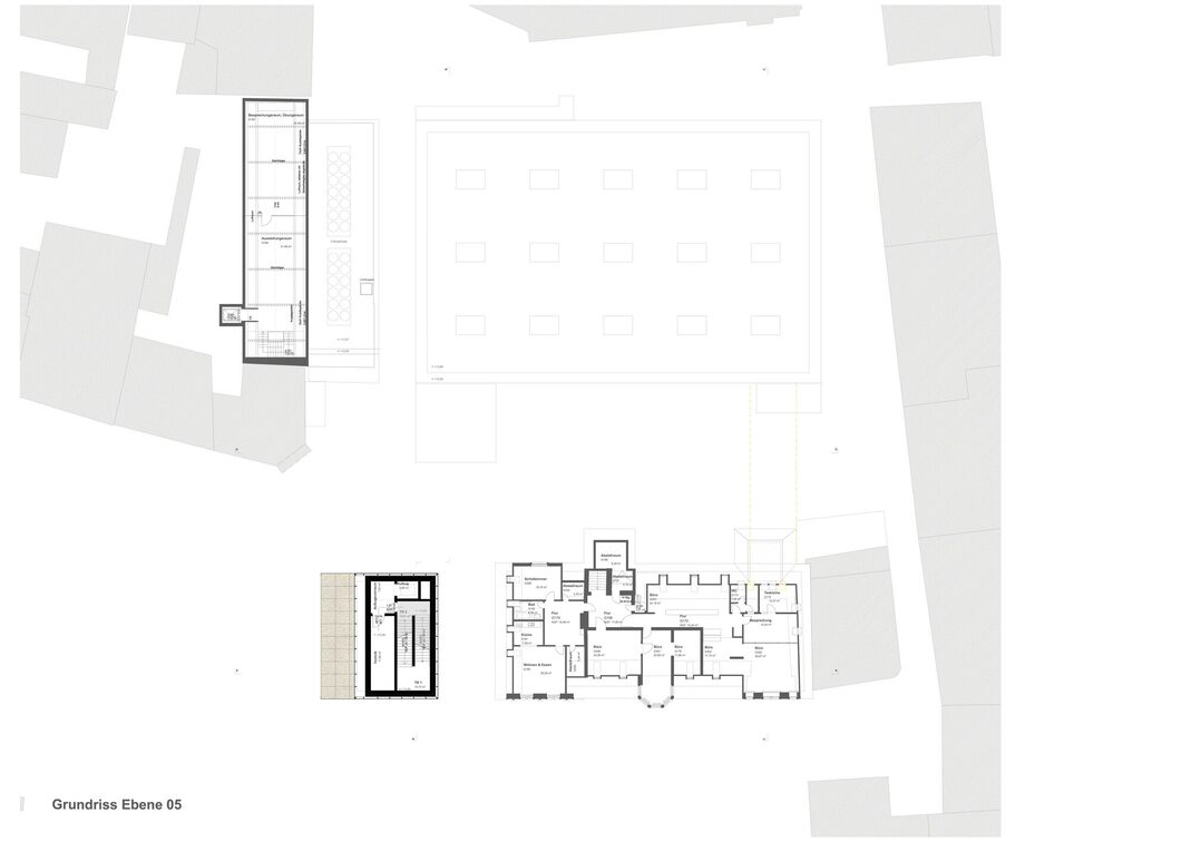
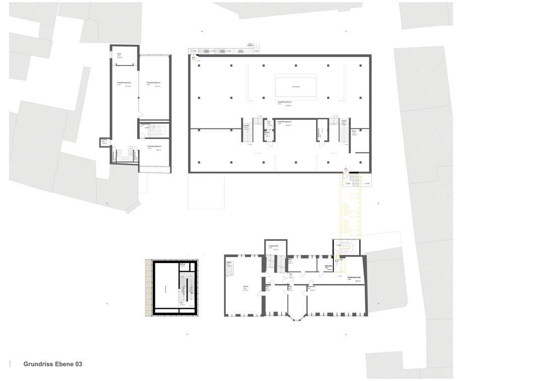
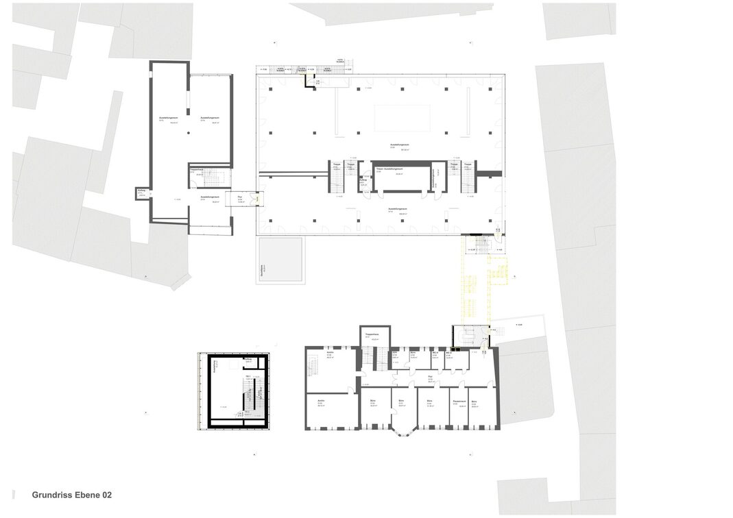
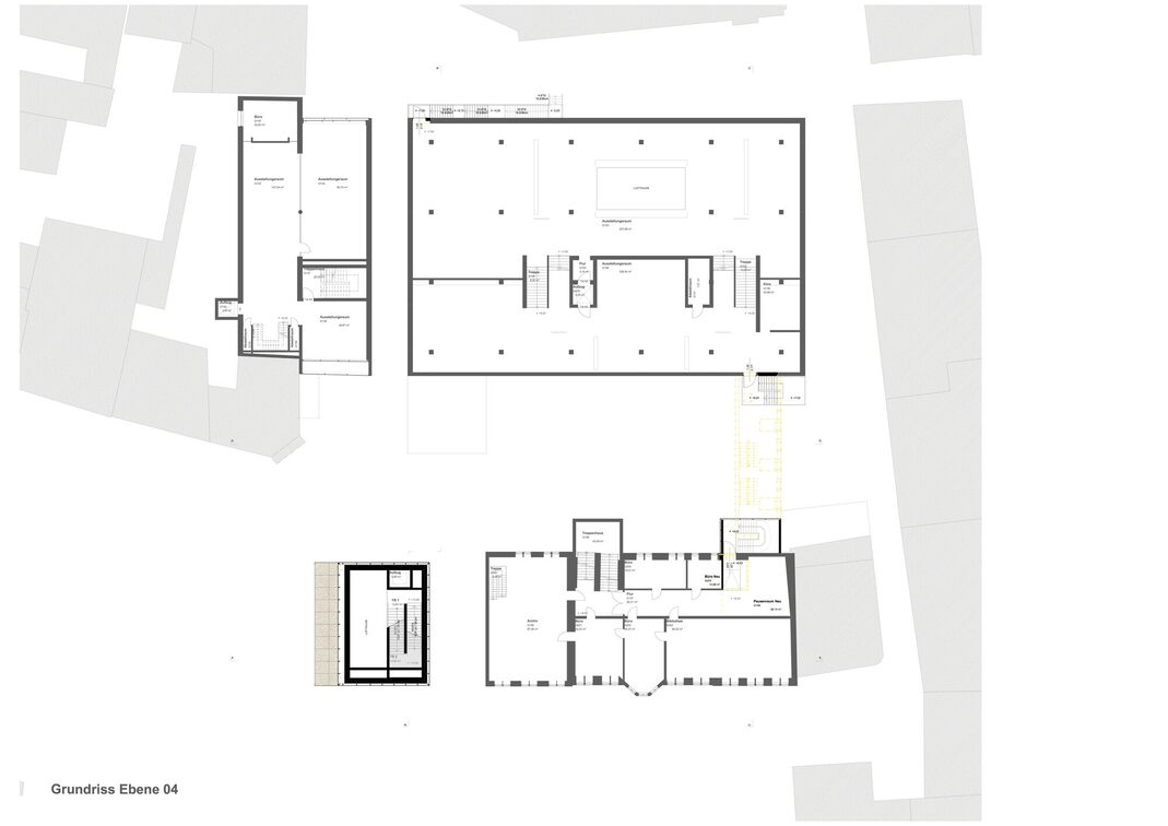
Erster Bauabschnitt zur Erweiterung des Gutenberg-Museums: "Bibelturm"/Planungsstand: Genehmigungsplanung (Dezember 2017)

Der Bauantrag für den ersten Bauabschnitt zur Erweiterung des Gutenberg-Museums wurde Anfang Dezember 2017 bei der Unteren Bauaufsichtsbehörde eingereicht. Der folgende Text soll zur Erläuterung des Ablaufes der Vorentwurfs- und Entwurfsplanung sowie der Genehmigungsplanung und der Weiterentwicklung des prämierten Wettbewerbsentwurfes dienen.

Die in der Bildergalerie gezeigten Visualisierungen, Grundrisse, Ansichten und Schnitte zeigen alle den Stand dieser Genehmigungsplanung für die Gebäudeteile. Die Visualisierungen der Gestaltung des Platzes und des Blumenbeetes sind zunächst Ideen. Die Freiflächenplanung im Rahmen der Wiederherstellung und Neugestaltung des Platzes nach Abschluss der Baumaßnahme ist noch nicht abgeschlossen. Es ist beabsichtigt, hierzu die Mainzerinnen und Mainzer zu beteiligen.


Stadtratsbeschluss Bürgerentscheid (Verfahren ab November 2017)

Der Stadtrat hat in seiner Sitzung am 29. November 2017 die Verwaltung beauftragt alle nötigen Schritte für einen Bürgerentscheid nach §17a der Gemeindeordnung zum Erweiterungsbau des Gutenberg-Museums einzuleiten. Die genaue Fragestellung sowie weitere Einzelheiten des Verfahrens sollen in einer Sitzung des Stadtrates am Anfang des Jahres 2018 geklärt werden.

Oberbürgermeister Michael Ebling informierte am 23. Januar 2018 die Medien über Termin des Bürgerentscheids am 15. April 2018, den Fahrplan bis dorthin und die Frage, über die die Mainzerinnen und Mainzer zu entscheiden haben.

Der Stadtrat wird in seiner Sitzung am 7. Februar 2018 über diese Verwaltungsvorlage entscheiden.

Den Stadtratsantrag vom 29. November 2017 und die Pressemitteilung vom 23. Januar 2018 finden Sie in dieser Linkliste:


Informationsveranstaltung und Vorplanung (Januar - August 2017)


Finaler Siegerentwurf (Präsentation Juli 2016)

Im Anschluss an die Prämierung der Entwürfe fanden Vertragsverhandlungen mit den Sieger-Büros, der Gebäudewirtschaft Mainz und dem Gutenberg-Museum statt. Hierbei wurde festgelegt, dass gemeinsam mit der DFZ Architekten GmbH der Umbau des Museum realisiert werden soll.

Oberbürgermeister Michael Ebling hat am 5. Juli 2016 gemeinsam mit der Bau- und Kulturdezernentin Marianne Grosse und der Direktorin des Gutenberg-Museums, Dr. Annette Ludwig, den Siegerentwurf vorgestellt. Sie finden diesen mit Perspektiven und Plänen im Folgenden als Download.

Rückblick: Architektenwettbewerb (2016)

Siegerentwürfe des Architektenwettbewerbs

In der Bildergalerie finden Sie verschiedenen Anmutungen der Siegerentwürfe 1 bis 3.

Architektenwettbewerb: Protokoll, Pläne

In den folgenden Abschnitten finden Sie das Protokoll über die Preisgerichtssitzung - Phase 2 am 19.02.2016 in Mainz sowie die Berichte und Pläne der drei prämierten Entwürfe (sortiert unter dem jeweiligen Reiter) als pdf-Download.

Erläuterungen und Hinweise

Bildnachweise

Schnellsuche